Roof lights
by Jason, Merlin Metals
1. Custom Roof Light Flashing Kits
Kits can be fabricated to suit project specific dimensions and angles including low pitch roofs that some standard flashing kits cannot achieve.
Top tip
Prior to ordering an accurate roof plan needs to be produced, showing the size and location of the roof lights, degree of the roof pitch and height of the required upstand.”.

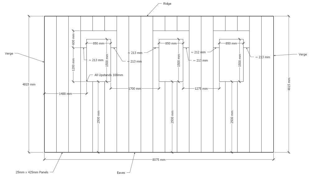
2. Planning
Planning for roof lights means ensuring the panel seams land in a suitable place along side the roof lights. A drawing like the example below helps provide the fabricators with clear instruction as to what exactly needs making for each project.
